
The Boziwi Workshop & Apartment
Designed for a group of makers and foodies in the area of Indiana that is known for more than corn, the Boziwi Workshop is a 60′ x 80′ x 18′ rigid frame pre-engineered metal building. Mad Brew Skunkworx has worked with the Bo of Boziwi before, and we collaborated on the door and window schedule and the interior floor plan for their building.

They wanted ample space for fabricating and their requisite machines, but also wanted to be able to drive through their shop. As a bonus, they requested plans for a future lofted apartment, for those late nights building and creating.
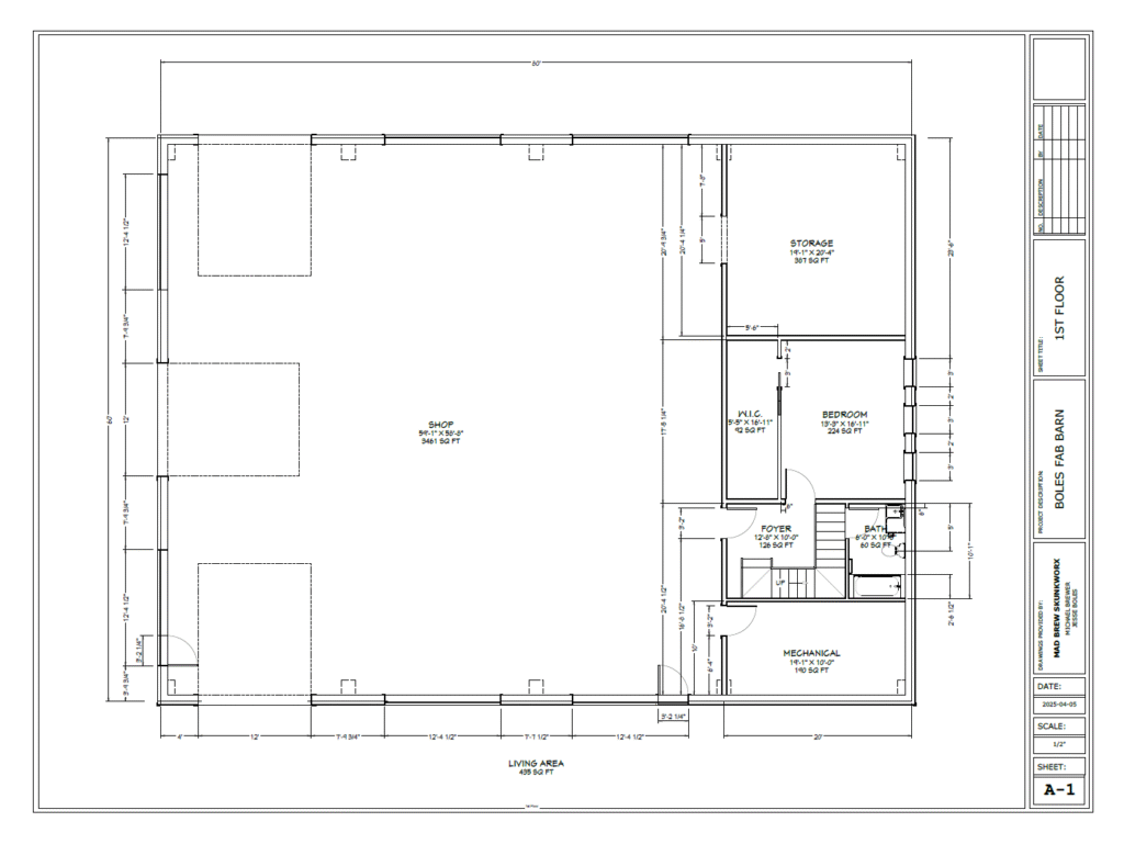
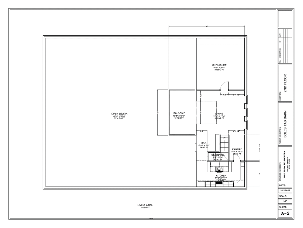
With the 18′ tall eaves, we were able to tuck a small galley style kitchen at the end of the 2nd floor structure while still leaving room for 8′ tall ceilings on the first floor for the bedroom, bathroom (for easy access while working), and mechanical room. The living room will take advantage of the pitched roof with a cathedral ceiling. This leaves an area that can be used as a 2-storey storage facility or converted into additional spaces of their liking.


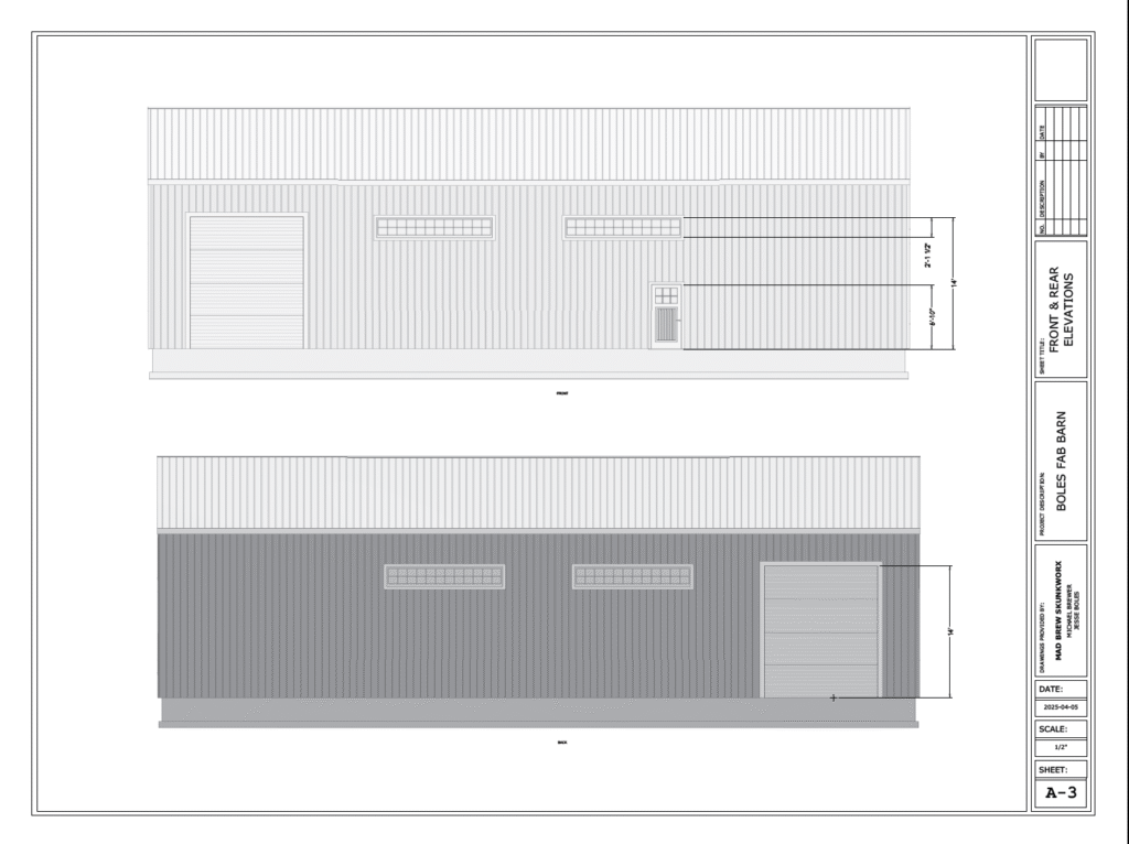
We added an array of windows to the right side of the building to provide adequate lighting for both the bedroom and living room upstairs. For each bay in the shop that did not have a large, oversized 12′ x 14′ roll up door, we added a 12′ x 2′ transom window aligned with the tops of the doors, giving plenty of natural light while not sacrificing usable wall space where cabinets, workbenches, or machinery.
In the first floor living area, there is ample space for mechanicals, segregated into its own room. This will provide sound management for the aircompressor. Across the foyer from the mechanical closet, is a spacious bedroom and a giant walk-in closet, you know for storying work wear! We managed to fit a full bathroom under the stairs leading to the kitchen and living room.


On the 2nd floor, we put in a kitchen with upper cabinets that will hide the support brackets. The cooking surface faces a bar built-into the stair railing whose stairs lead into the vaulted living room. The final touch was adding a modern aluminum and glass overhead door that leads from the living room to a balcony with a cantelevered floor overlooking the shop.
This RF PEMB will be manufactured by Great Western Buildings.
